Gores Lane, Formby

4 bedroom Detached house for sale

Offers over £925,000

Calculate your mortgage repayments
  • 4 bedroom
  • 3 bathroom
  • 2 reception

Key Features

  • Stunning family home EXTENDED and TRANSFORMED
  • Large 0.23 acre GARDEN with an Orchard area
  • Spectacular OPEN-PLAN KITCHEN, DINING, and LIVING space
  • LOUNGE with wood-burning stove and further SITTING ROOM/FIFTH BEDROOM/OFFICE
  • Ground floor SHOWER ROOM AND UTILITY ROOM
  • FOUR BEDROOMS, BATHROOM and EN-SUITE
  • Planning permission to EXTEND over the garage
  • OFF-ROAD parking and GARAGE
  • Call 01704 516 626 to view - find us on Facebook and Instagram

Description

This STUNNING CONTEMPORARY FAMILY HOME has been completely reimagined and extended to create an exceptional living space that blends modern design with a sense of warmth and balance. Positioned on GORES LANE, one of Formby’s most desirable addresses, the property sits within a GENEROUS 0.23-ACRE PLOT — beautifully landscaped and private, with mature trees, an orchard, and regular visits from local wildlife.

Behind its traditional façade lies a bright, inviting interior that’s been meticulously redesigned. The DOUBLE-HEIGHT ENTRANCE HALL creates an instant impression, flooded with light and finished with a striking pendant feature. The LOUNGE WITH WOOD-BURNING STOVE forms a cosy winter retreat, while the separate SECOND RECEPTION ROOM / FIFTH BEDROOM makes an ideal home office or guest suite, served by a stylish SHOWER ROOM.

The heart of the home is the SPECTACULAR OPEN-PLAN KITCHEN, DINING AND LIVING AREA — an impressive, free-flowing space with full-width SLIDING DOORS opening to the garden. The kitchen features a large island with quartz worktops, integrated Bosch appliances, and a discreet WALK-IN PANTRY. A UTILITY ROOM, ground-floor WC and INTEGRAL GARAGE complete the practical ground floor layout.

Upstairs, a galleried landing leads to FOUR BEDROOMS and a beautifully appointed BATHROOM with a freestanding bath and walk-in shower. The guest bedroom enjoys a private EN-SUITE, while the principal bedroom is flooded with natural light from a wide bay window. Planning permission has been granted for a further TWO BEDROOMS AND BATHROOM ABOVE THE GARAGE, offering flexibility for the future.

The rear garden is a true highlight — a large, secluded space with an extensive terrace, manicured lawn, and an orchard area at the far end. Secure, family-friendly, and thoughtfully designed for entertaining, it perfectly complements the home’s calm, contemporary aesthetic.

Tenure: Freehold

Council Tax Band: F


Location


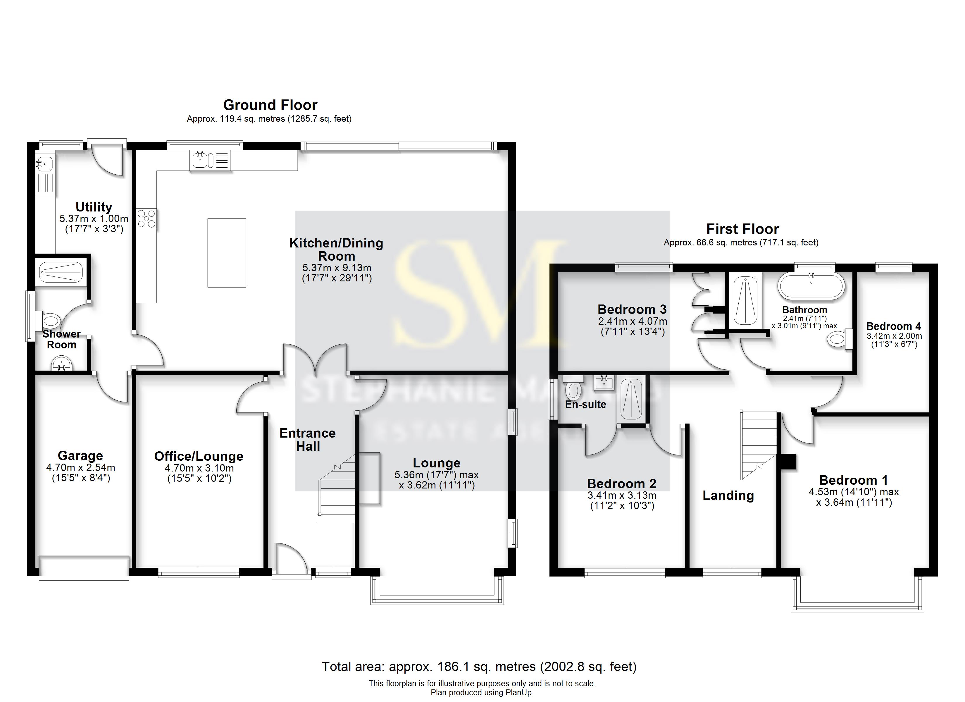
Floorplan

Floorplan

EPC

EPC for Formby, Liverpool, Merseyside

Video Tour


*This mortgage calculator is provided for general information purposes only. It's intended to provide you with an estimate of your potential mortgage payments and does not constitute an offer of finance or advice. The calculations are based on the information you provide and do not take into account your individual needs and circumstances.

The calculator does not include all the costs you will need to pay when taking out a mortgage. Your actual mortgage payments may be higher or lower than the estimates provided by this calculator. The interest rates used in the calculations are subject to change and may not reflect the actual rates available in the market.

Please note that the calculator does not consider changes in interest rates over time, early repayment charges, or any other fees and charges that may apply to your mortgage. You should always seek professional advice before making any financial decisions.

Remember, your home may be repossessed if you do not keep up repayments on your mortgage.

Calculate Your Stamp Duty
£
Results
Stamp Duty To Pay:
Effective Rate:
Tax Band % Taxable Sum Tax

£ 0
£ 0
Your estimated gross rental yield would be:
0.00%

Stephanie Macnab

9 The Beacons, School Lane, Formby, L37 3LN

Similar Properties

Great Altcar, Liverpool, Lancashire
For Sale

Lord Sefton Way, Great Altcar

3 Bed Semi-detached house For Sale
Offers over £300,000
Formby, Liverpool, Merseyside
For Sale

St Annes Road, Formby

3 Bed Semi-detached house For Sale
Offers over £425,000
Formby, Liverpool, Merseyside
For Sale

Park Road, Formby

4 Bed Semi-detached house For Sale
Offers over £280,000