Timms Lane, Formby

5 bedroom Detached house for sale

Offers over £1,400,000

Calculate your mortgage repayments
  • 5 bedroom
  • 4 bathroom
  • 2 reception

Key Features

  • A MAGNIFICENT home that offers luxury and glamour combined with quality craftsmanship
  • OPEN-PLAN living space and kitchen with BI-FOLDING DOORS
  • A custom-made hardwood kitchen by Loxley's of Nottingham
  • Relaxing LOUNGE and a GYM for the more energetic
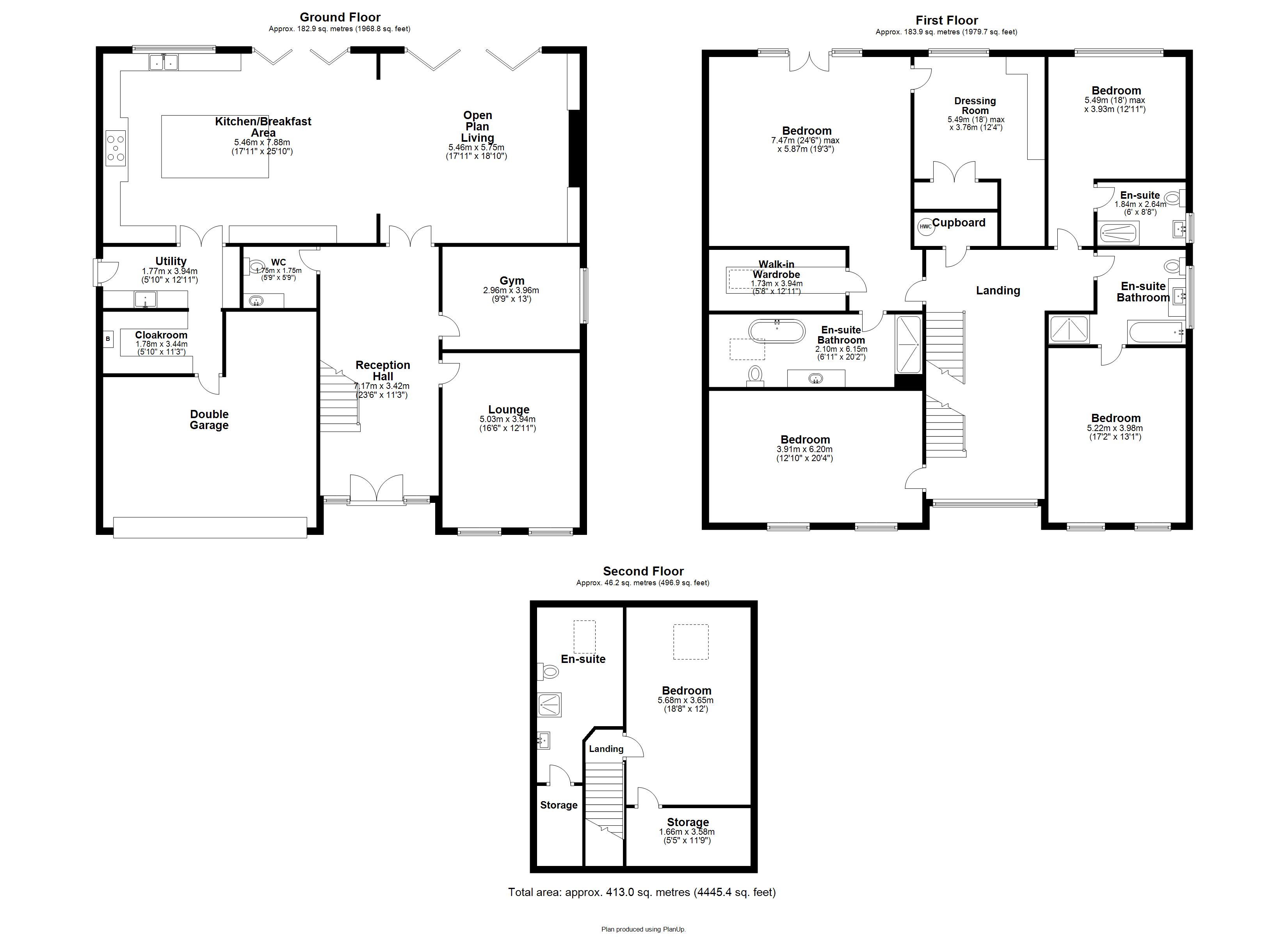
  • FIVE BEDROOMS and FOUR BATH/SHOWER ROOMS
  • The main bedroom is a true masterpiece combining spaciousness and thoughtful design
  • Internal floor area circa 4,500 sq ft on a plot of 0.20 of an acre
  • SOUTH-facing rear garden
  • Call 01704 516 626 to view - find us on Facebook and Instagram
  • NO ONWARD CHAIN

Description

NO ONWARD CHAIN - Introducing a GLAMOROUS and MODERN HOME that exudes LUXURY and STYLE, this property is a true gem. Nestled behind a high wall with electric gates, it offers the utmost PRIVACY and SECURITY, creating an oasis of tranquillity.

Crafted by a renowned local developer, this impressive DETACHED dwelling spans approximately 4,500 sq ft, showcasing the epitome of exquisite living. Situated on a generous plot of 0.20 acres, the property benefits from a sunny, SOUTH-FACING rear aspect, allowing for abundant natural light throughout the day.

As you step across the threshold, prepare to be captivated by the STRIKING ELEGANCE that permeates every corner of this residence. The ENTRANCE HALL effortlessly combines grandeur and warmth, setting the tone for the rest of the home. The OPEN-PLAN KITCHEN LIVING SPACE is nothing short of breathtaking. From the comfortable SITTING AREA and tasteful media wall to the MAGNIFICENT KITCHEN, no detail has been overlooked. The HARDWOOD KITCHEN cabinetry, meticulously crafted by Loxley's of Nottingham, stands as a testament to the finest quality and craftsmanship.

Continuing the theme of sophistication, the property boasts SOLID OAK HERRINGBONE FLOORING and bespoke HARDWOOD ASH DOORS throughout, showcasing an attention to detail that sets it apart.

For moments of relaxation and unwinding, retreat to the tranquil LOUNGE. Alternatively, if you're feeling energized, take advantage of the fully-equipped GYM, ensuring your well-being is always a priority.

Upstairs, the GALLERIED LANDING floods the floor with an abundance of natural light, creating an inviting atmosphere. The MAIN BEDROOM is a true masterpiece, combining spaciousness with thoughtful design. Offering a seating area with French doors overlooking the rear garden, it provides a serene retreat. The room also features a WALK-IN DRESSING ROOM and an ADDITIONAL WALK-IN WARDROBE, complemented by a luxurious EN-SUITE BATHROOM. THREE ADDITIONAL BEDROOMS on this floor, along with TWO BATHROOMS, provide ample space and comfort for family and guests.

On the second floor, a GUEST SUITE/FIFTH BEDROOM awaits, complete with its own SHOWER ROOM, ensuring privacy and convenience for visitors.

To enhance the homeowner's experience, a Control4 smart system has been integrated, providing seamless control over various aspects of the property. Additionally, the property offers excellent security measures, including CCTV, an alarm system, and security lighting.

In summary, this magnificent property is a fusion of luxury, style, and modern living. With its meticulous attention to detail, spacious interiors, and impeccable craftsmanship, it offers a truly remarkable living experience. Don't miss the opportunity to make this glamorous haven your own. Contact us today to arrange a viewing and embark on a journey of refined living.

Tenure: Freehold

Council Tax Band: G


Location


Floorplan

Floorplan

EPC

EPC for Formby, Liverpool, Merseyside

Video Tour


*This mortgage calculator is provided for general information purposes only. It's intended to provide you with an estimate of your potential mortgage payments and does not constitute an offer of finance or advice. The calculations are based on the information you provide and do not take into account your individual needs and circumstances.

The calculator does not include all the costs you will need to pay when taking out a mortgage. Your actual mortgage payments may be higher or lower than the estimates provided by this calculator. The interest rates used in the calculations are subject to change and may not reflect the actual rates available in the market.

Please note that the calculator does not consider changes in interest rates over time, early repayment charges, or any other fees and charges that may apply to your mortgage. You should always seek professional advice before making any financial decisions.

Remember, your home may be repossessed if you do not keep up repayments on your mortgage.

Calculate Your Stamp Duty
£
Results
Stamp Duty To Pay:
Effective Rate:
Tax Band % Taxable Sum Tax

£ 0
£ 0
Your estimated gross rental yield would be:
0.00%

Stephanie Macnab

9 The Beacons, School Lane, Formby, L37 3LN

Similar Properties

Formby, Liverpool, Merseyside
For Sale

Piercefield Road, Formby

6 Bed Detached house For Sale
£800,000
Formby, Liverpool, Merseyside
For Sale

Grisedale Close, Formby

4 Bed Semi-detached house For Sale
Offers over £350,000
Victoria Road, Formby, Merseyside
For Sale

The Pinewoods, Victoria Road

4 Bed Detached house For Sale
£875,000