TWO OUTSTANDING NEW BUILD HOMES – OVER 2,700 SQ FT – BACKING ONTO AINSDALE VILLAGE PARK
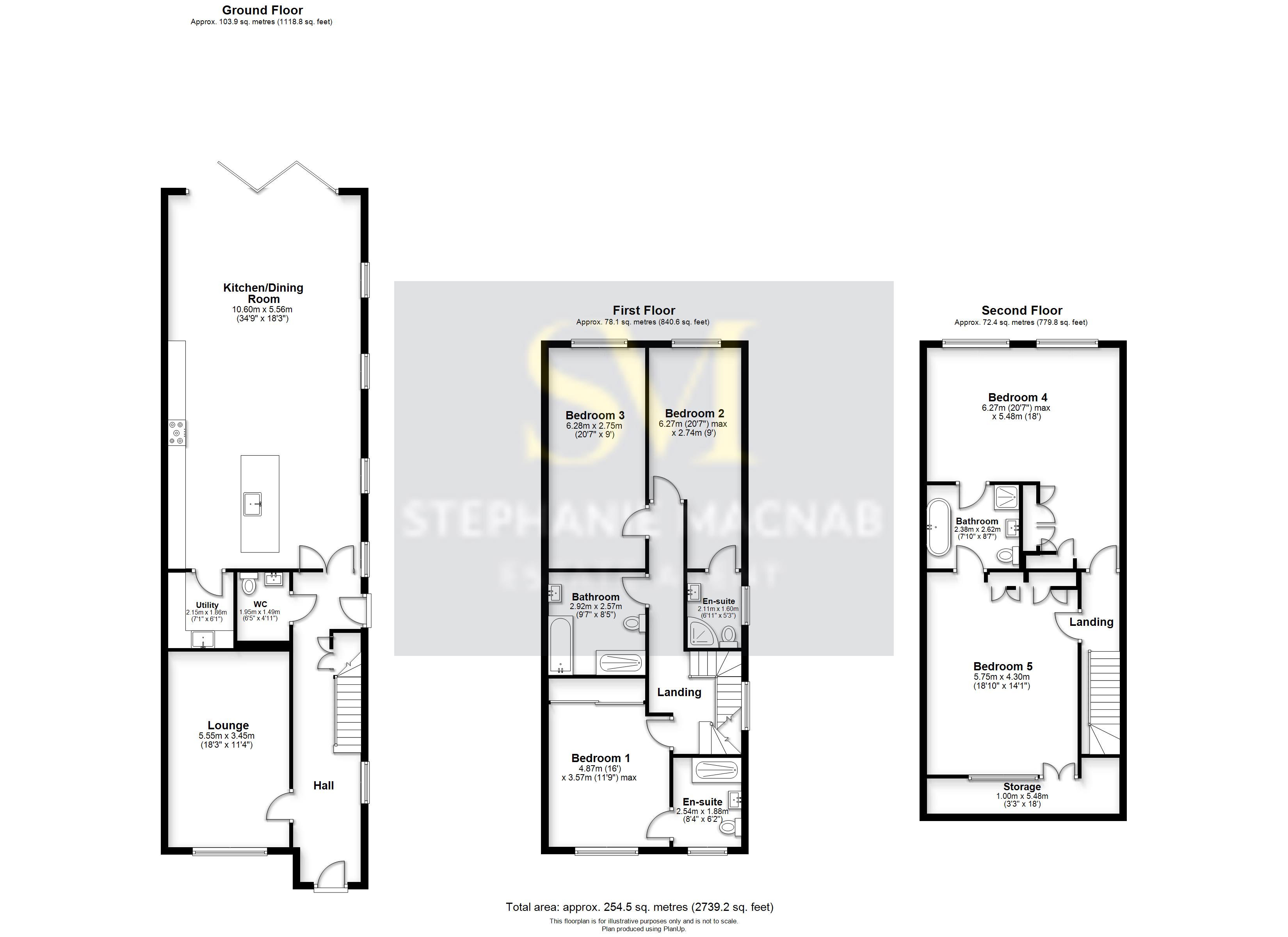
We’re proud to introduce these two superbly crafted NEW BUILD HOMES, each extending to more than 2,700 sq ft across THREE SPACIOUS FLOORS. Designed with modern family living in mind, they combine striking design, quality materials, and a layout that delivers both flexibility and comfort.
Each home offers FIVE GENEROUSLY SIZED DOUBLE BEDROOMS, TWO STYLISH BATHROOMS, and TWO EN-SUITE SHOWER ROOMS, including a cleverly designed Jack & Jill en-suite on the top floor. At the heart of the home is a stunning OPEN-PLAN KITCHEN/DINING/LIVING AREA, complete with quartz worktops, an integrated wine fridge, and FULL-WIDTH BI-FOLD DOORS that open directly onto the garden. A separate FORMAL LOUNGE provides a peaceful escape to the front of the property.
The detailing throughout is exceptional – from the elegant oak staircase with wrought iron spindles, to bespoke fitted wardrobes, plush carpets, and beautifully appointed bathrooms featuring freestanding tubs and walk-in rainfall showers.
Outside, the LANDSCAPED REAR GARDEN enjoy an OPEN OUTLOOK across Ainsdale Village Park, a much-loved green space maintained by local volunteers and home to the village tennis club. Both properties benefit from private DRIVEWAY parking, are offered FREEHOLD, come with a 10-year STRUCTURAL WARRANTY, and are available with NO ONWARD CHAIN.
Located in the heart of vibrant Ainsdale village, residents will enjoy a fantastic mix of independent shops, cafes, and pubs, well-regarded schools, and excellent transport links – with direct trains to Southport and Liverpool, and the beautiful Sefton coastline just minutes away.
Tenure: Freehold
Council Tax Band:
*This mortgage calculator is provided for general information purposes only. It's intended to provide you with an estimate of your potential mortgage payments and does not constitute an offer of finance or advice. The calculations are based on the information you provide and do not take into account your individual needs and circumstances.
The calculator does not include all the costs you will need to pay when taking out a mortgage. Your actual mortgage payments may be higher or lower than the estimates provided by this calculator. The interest rates used in the calculations are subject to change and may not reflect the actual rates available in the market.
Please note that the calculator does not consider changes in interest rates over time, early repayment charges, or any other fees and charges that may apply to your mortgage. You should always seek professional advice before making any financial decisions.
Remember, your home may be repossessed if you do not keep up repayments on your mortgage.
| Tax Band | % | Taxable Sum | Tax |
|---|